Details
Gallery
Contact
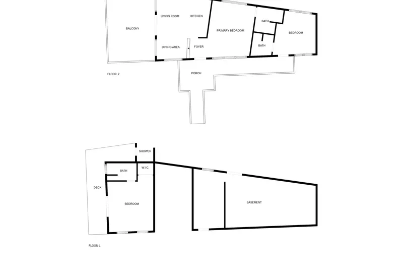
27-REM Water Island SS, Water Island, USVI
Photo Gallery
Contact Us
Kelsey Thomas
Real Estate Professional
C: 804.513.8311
I'm interested in Video Chat
No
Yes
First Name
Last Name
Email Address
Phone Number
Message
I’m interested in 27-REM Water Island SS in Water Island.
Request Info